347 000€
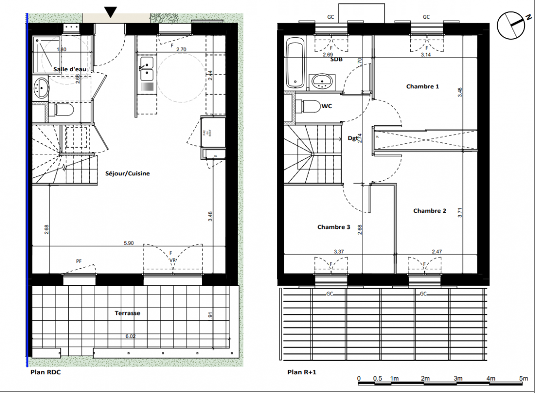
Maison au 0-RDC
T4
75.9 m²
Est
Châteauneuf-de-Gadagne (84470)
2ème trimestre 2028
01 81 80 39 10
Présentation du programme "LE CLOS DE LOUISE"
À 15 km d’Avignon, au cœur du Vaucluse, Châteauneuf-de-Gadagne dévoile un programme immobilier exclusif. Niché sur une colline entre vallée du Rhône et Comtat Venaissin, ce village de caractère offre un cadre rare, empreint d’histoire et de nature. La résidence s’implante à l’entrée Ouest du village, dans un environnement résidentiel calme et verdoyant, à proximité immédiate des écoles, équipements sportifs et culturels, avec accès rapide aux bus, à l’A7 et à la gare TGV d’Avignon.
Le projet se déploie sur 8 500 m² et propose une offre d'appartements et de villas contemporaines.
L’architecture s’inspire des bastides provençales, mariant volumes actuels et matériaux authentiques : enduits argile et blanc, pierres beiges, menuiseries taupe, tuiles en terre cuite vieillie et garde-corps couleur rouille.
Les appartements de 2 et 3 pièces, bénéficient tous d’un extérieur (balcon, terrasse ou jardin).
Les villas de 4 pièces offrent des séjours spacieux, cuisines ouvertes, suites parentales et terrasses prolongées par des jardins clôturés.
Le domaine est complété d’espaces verts, de jardins partagés et cheminements arborés favorisant le bien-être.
Conçu selon la réglementation environnementale RE2020, le programme garantit confort thermique, sobriété énergétique et qualité constructive.
Pour découvrir ce programme, contactez dès à présent les équipes VINCI Immobilier et profitez de l'art de vivre provençal aux portes d’Avignon.
Autres logements T4 du programme "LE CLOS DE LOUISE"
| Disponibilité | Prix | No | Genre | Pièces | Surface | Étage | Disponibilité | Prix | ||
|---|---|---|---|---|---|---|---|---|---|---|
| Voir | Disponible | 342 000€ | MA01 | Maison | T4 | 75.9m2 | 0-RDC | Disponible | 342 000€ | Voir |
| Voir | Disponible | 342 000€ | MA02 | Maison | T4 | 75.9m2 | 0-RDC | Disponible | 342 000€ | Voir |
| Voir | Disponible | 352 000€ | MA03 | Maison | T4 | 75.9m2 | 0-RDC | Disponible | 352 000€ | Voir |
| Voir | Disponible | 352 000€ | MA04 | Maison | T4 | 75.9m2 | 0-RDC | Disponible | 352 000€ | Voir |
| Voir | Disponible | 347 000€ | MA06 | Maison | T4 | 74.7m2 | 0-RDC | Disponible | 347 000€ | Voir |
| Voir | Disponible | 352 000€ | MA07 | Maison | T4 | 75.9m2 | 0-RDC | Disponible | 352 000€ | Voir |
| Voir | Disponible | 352 000€ | MA08 | Maison | T4 | 74.7m2 | 0-RDC | Disponible | 352 000€ | Voir |
| Voir | Disponible | 352 000€ | MA09 | Maison | T4 | 74.7m2 | 0-RDC | Disponible | 352 000€ | Voir |
| Voir | Disponible | 352 000€ | MA10 | Maison | T4 | 74.7m2 | 0-RDC | Disponible | 352 000€ | Voir |
| Voir | Disponible | 382 000€ | MA11 | Maison | T4 | 74.7m2 | 0-RDC | Disponible | 382 000€ | Voir |
| Voir | Disponible | 382 000€ | MA12 | Maison | T4 | 74.7m2 | 0-RDC | Disponible | 382 000€ | Voir |
| Voir | Disponible | 382 000€ | MA13 | Maison | T4 | 75.9m2 | 0-RDC | Disponible | 382 000€ | Voir |
| Voir | Disponible | 382 000€ | MA14 | Maison | T4 | 75.9m2 | 0-RDC | Disponible | 382 000€ | Voir |
| Voir | Disponible | 412 000€ | MA15 | Maison | T4 | 75.9m2 | 0-RDC | Disponible | 412 000€ | Voir |