Prix
339 000€
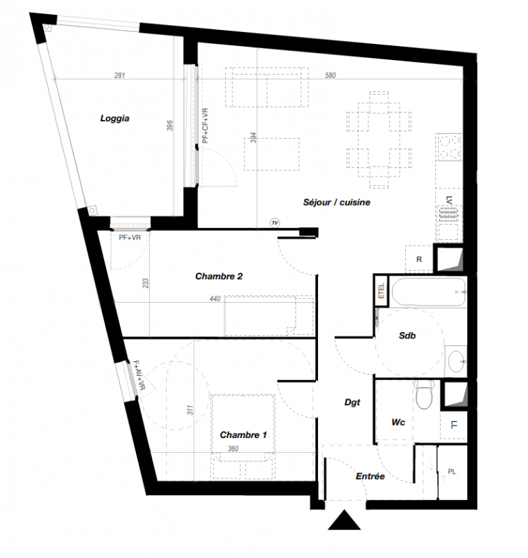
Type
Appt. au 6ème
Pièces
T3
Surface
62 m²
Exposition
-
Ville
Montpellier (34000)
Livraison
2ème trimestre 2028
Informations
01 81 80 39 10

Présentation du programme "BAHIA"

Entre la rue du Moulin des Sept Cans et l’avenue du Petit Train,
BAHIA s’inscrit au cœur d’un faubourg qui se réinvente. Niché
dans le secteur de l’Hôtel de Ville, animé et résidentiel, le site
profite de l’énergie de Port Marianne, emblème du Montpellier
contemporain où parcs paysagers, bureaux, restaurants et
commerces dessinent une vraie vie de quartier.

Autres logements T3 du programme "BAHIA"

Disponibilité Prix Genre Pièces Surface Étage
Voir
Disponible
349 999€ Appt. T3 64m2 7ème
Voir
Disponible
354 000€ Appt. T3 62m2 8ème
Voir
Disponible
349 000€ Appt. T3 62m2 7ème
Voir
Disponible
349 000€ Appt. T3 63m2 7ème
Voir
Disponible
334 000€ Appt. T3 62m2 5ème
Voir
Disponible
345 000€ Appt. T3 64m2 6ème
Voir
Disponible
343 999€ Appt. T3 63m2 6ème
DO NOT CLICK