205 000€
Appt. au 2ème
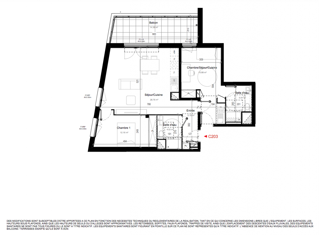
T3
50.59 m²
Sud
Toulouse (31000)
1er trimestre 2027
01 81 80 39 10
Présentation du programme "TERRE D'ENVOL"
LE PRINTEMPS DE L'IMMO : jusqu'à 4 000 € de remise ainsi que les frais de notaire offerts* !Devenez propriétaire de votre appartement neuf à Toulouse, dans le quartier recherché de Saint-Martin-du-Touch, à l’ouest de la ville. Travaux en cours ! Envie d’investir ? Cette résidence est éligible au nouveau dispositif d’investissement locatif JEANBRUN, pour constituer un patrimoine, réduire vos impôts et préparer votre retraite !
Située dans un environnement paisible et verdoyant, la résidence Terre d’Envol vous propose des appartements neufs du 2 au 4 pièces, tous prolongés par de spacieuses terrasses, pouvant atteindre jusqu’à 36 m². Chaque logement bénéficie d’une pièce de vie lumineuse, de prestations de qualité, avec carrelage, faïence, sol stratifié, volets roulants (électriques pour certaines pièces), salle de bains équipée et place de stationnement privative.
Implantée à proximité immédiate des zones d’emploi majeures de Toulouse, avec un accès rapide à la rocade, la résidence est parfaitement desservie par les transports : gare TER, lignes de bus, et d’ici 2028, une future station de métro renforcera encore la connectivité du quartier. Écoles, commerces de proximité, infrastructures sportives et culturelles sont accessibles en quelques minutes à pied.
Que vous souhaitiez acheter votre résidence principale à Toulouse ou réaliser un investissement immobilier durable, cette adresse vous offre un cadre de vie alliant modernité, confort et praticité, dans un secteur à fort potentiel.
Ne manquez pas cette opportunité de concrétiser votre projet immobilier neuf à Saint-Martin-du-Touch. Contactez dès maintenant notre équipe commerciale pour découvrir nos logements disponibles.
*Frais de notaire offerts + Remise de 1 000€ TTC par pièce principale soit 2 000€ pour un T2, 3 000€ pour un T3 et 4 000€ pour un T4. Offre valable pour les 5 prochains réservataires, sous conditions de la signature d'un contrat de réservation jusqu'au 31/05/2026 et à la réitération de l’acte authentique de vente dans les 3 mois qui suivent la réservation.
Autres logements T3 du programme "TERRE D'ENVOL"
| Disponibilité | Prix | No | Genre | Pièces | Surface | Étage | Disponibilité | Prix | ||
|---|---|---|---|---|---|---|---|---|---|---|
| Voir | Disponible | 245 000€ | C205 | Appt. | T3 | 64.95m2 Le bon plan | 2ème | Disponible | 245 000€ | Voir |
| Voir | Disponible | 255 000€ | C305 | Appt. | T3 | 64.98m2 | 3ème | Disponible | 255 000€ | Voir |
| Voir | Disponible | 265 000€ | C405 | Appt. | T3 | 64.95m2 | 4ème | Disponible | 265 000€ | Voir |

