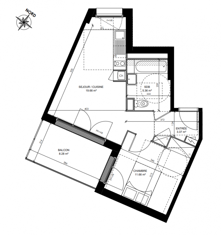
246 825€
Appt. au 2ème
T2
39.82 m²
-
Toulouse (31000)
4ème trimestre 2027
01 81 80 39 10
Présentation du programme "Ô TOULOUSE"
DEVENEZ PROPRIÉTAIRE D'UN APPARTEMENT DE STANDING DU 2 AU 4 PIÈCES, À 4 MIN* DU MÉTRO ET 10 MIN* DU CAPITOLE !
UNE ADRESSE IDÉALE POUR HABITER OU INVESTIR GRÂCE AU DISPOSITIF JEANBRUN**.
FRAIS DE NOTAIRE OFFERTS** POUR LES 5 PREMIERS RÉSERVATAIRES.
VOTRE APPARTEMENT 2 PIÈCES AVEC BALCON À 783,70 €/MOIS** SOIT 190 000 €** EN TVA RÉDUITE À 5,5%**
VOTRE APPARTEMENT 3 PIÈCES AVEC BALCON À 1 245,06 €/MOIS** SOIT 321 000 €** EN TVA RÉDUITE À 5,5%**
VOTRE APPARTEMENT 4 PIÈCES AVEC TERRASSE À PARTIR DE 549 000 €**
Pour habiter, boostez votre pouvoir d'achat grâce au Prêt à Taux Zéro** : bénéficiez d’un emprunt à taux 0 % pouvant atteindre jusqu’à 180 000 €, soit 50 % du montant de votre achat. Profitez également de la TVA réduite à 5,5 %** (sous conditions) pour devenir propriétaire au meilleur prix, le tout dans une résidence aux dernières normes d'isolation thermique.
European Homes met ses 50 ans d'expertise au service de votre futur bien-être.
TOULOUSE : UN QUOTIDIEN CONNECTÉ AU PIED DU MÉTRO
Idéalement située au 88-92 boulevard Silvio Trentin, la résidence « Ô TOULOUSE » vous place au centre d'un des secteurs les plus dynamiques de la ville.
Ici, la mobilité est totale : la station de métro « Barrière de Paris » (Ligne B) est à seulement 4 min* à pied, vous permettant de rejoindre la Place du Capitole en 10 min*. Pour vos trajets professionnels, la future ligne C et les pôles aéronautiques (Airbus) sont à moins de 10 min*. Tout se fait à pied : le supermarché est à 3 min*, les écoles à 9 min* et les commerces de proximité sont au bout de la rue.
Ô TOULOUSE : L’EXCELLENCE D'UNE RÉSIDENCE INTIMISTE
Découvrez un projet à l'architecture sobre et contemporaine, mis en valeur par ses élégants jardins suspendus. « Ô TOULOUSE » est un lieu de vie à taille humaine de seulement 21 appartements, conçu pour vous offrir un cadre privilégié.
Les prestations ont été rigoureusement sélectionnées pour votre confort : cuisines équipées, carrelage grand format et finitions soignées. Chaque logement bénéficie d'une conception qui privilégie la lumière naturelle et se prolonge par un bel espace extérieur (balcon ou terrasse). Pour votre tranquillité, vous profitez également de places de stationnement sécurisées en sous-sol.
Faites votre choix parmi nos opportunités :
- Appartements 2 pièces : Des surfaces optimisées d’environ 39 m², aux agencements fonctionnels, parfaits pour un premier achat ou un investissement locatif stratégique au cœur de Toulouse.
- Appartements 3
Autres logements T2 du programme "Ô TOULOUSE"
| Disponibilité | Prix | No | Genre | Pièces | Surface | Étage | Disponibilité | Prix | ||
|---|---|---|---|---|---|---|---|---|---|---|
| Voir | Disponible | 216 144€ | A101 | Appt. | T2 | 39.63m2 | 1er | Disponible | 216 144€ | Voir |
| Voir | Disponible | 244 550€ | A104 | Appt. | T2 | 39.82m2 | 1er | Disponible | 244 550€ | Voir |
| Voir | Disponible | 243 412€ | A201 | Appt. | T2 | 39.63m2 | 2ème | Disponible | 243 412€ | Voir |
| Voir | Disponible | 247 962€ | A301 | Appt. | T2 | 39.63m2 | 3ème | Disponible | 247 962€ | Voir |
| Voir | Disponible | 247 962€ | A304 | Appt. | T2 | 39.82m2 | 3ème | Disponible | 247 962€ | Voir |
| Voir | Disponible | 247 962€ | A401 | Appt. | T2 | 39.63m2 | 4ème | Disponible | 247 962€ | Voir |
| Voir | Disponible | 250 237€ | A404 | Appt. | T2 | 39.86m2 | 4ème | Disponible | 250 237€ | Voir |