327 583€
Appt. au 6ème
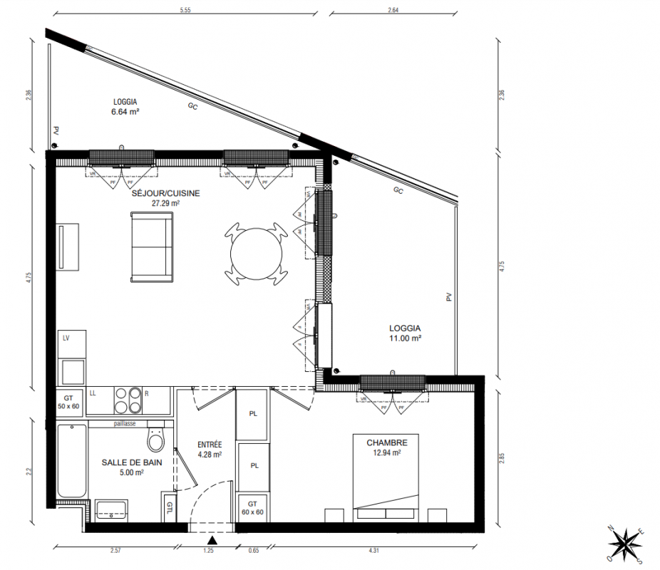
T2
49.52 m²
-
Ivry-sur-Seine (94200)
1er trimestre 2028
01 81 80 39 10
Présentation du programme "GAMBETTA 1"
Située aux portes immédiates de la capitale, Ivry-sur-Seine s’affirme comme une commune en pleine mutation, conjuguant avec justesse dynamisme urbain et qualité de vie. Bénéficiant d’un emplacement privilégié, à la fois limitrophe de Paris et bordée par la Seine, la ville s’attache à redéfinir ses quartiers tout en valorisant son riche passé industriel. Elle se distingue par la modernité de ses équipements, l’essor de ses infrastructures, ainsi que par ses engagements forts en faveur du développement durable, faisant d’Ivry-sur-Seine un territoire attractif, en constante évolution. C’est dans ce cadre renouvelé que s’inscrit cette nouvelle réalisation, proposant 86 appartements du 2 au 5 pièces duplex, conçus pour allier confort pérenne et art de vivre contemporain. Chaque logement s’ouvre sur un généreux espace extérieur – loggia ou terrasse – invitant à profiter pleinement d’un cœur d’îlot paysager soigneusement aménagé. Les plans, minutieusement étudiés, dévoilent des appartements traversants, pour certains en duplex, bénéficiant de multiples expositions. Ils offrent une luminosité naturelle optimale et des volumes chaleureux, propices à un quotidien harmonieux et apaisé.