Prix
430 000€
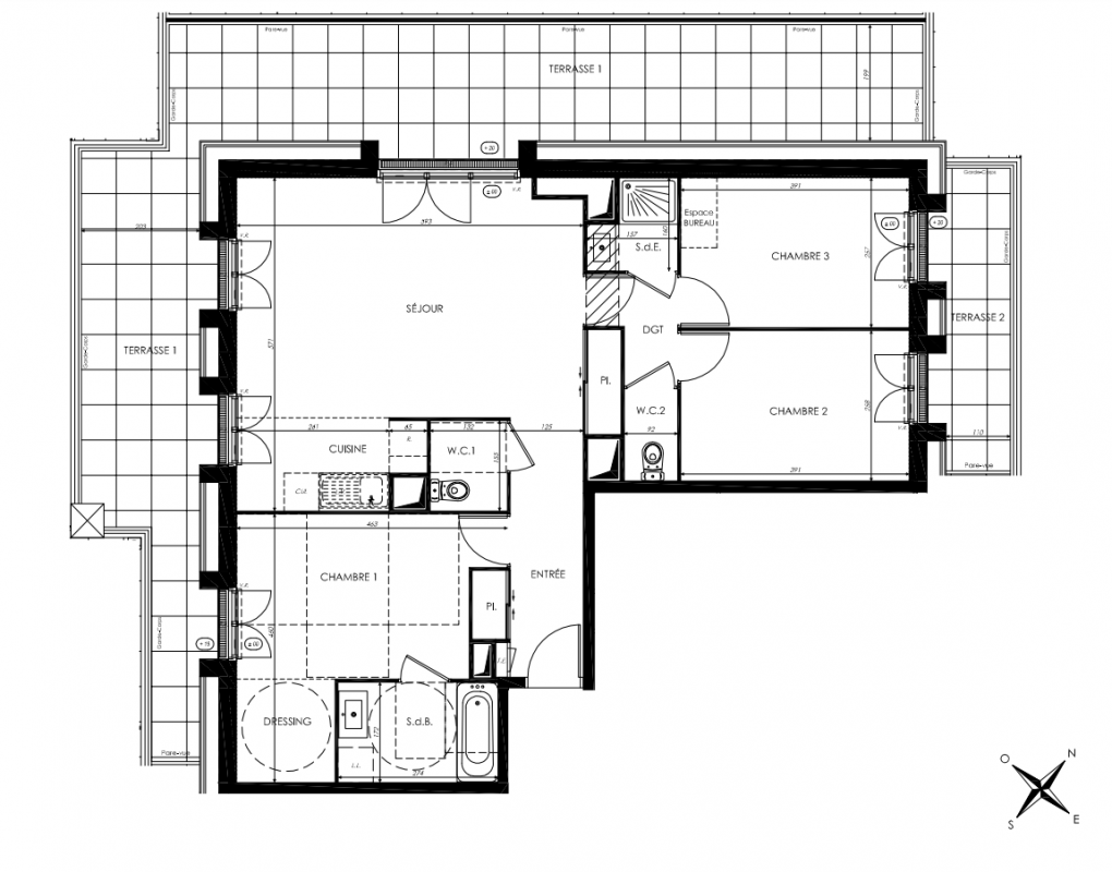
Type
Appt. au 3ème
Pièces
T4
Surface
83.9 m²
Exposition
-
Ville
Le Plessis-Bouchard (95130)
Livraison
1er trimestre 2028
Informations
01 81 80 39 10

Présentation du programme "Le Clos Gaillardet"

À Le Plessis-Bouchard, découvrez une ode à l’élégance
Entre Taverny et Saint-Leu, Le Plessis-Bouchard s'impose comme une des valeurs patrimoniales montantes aux portes de Paris. Cette commune recherchée du Val-d'Oise séduit par son excellente accessibilité en transports, son cadre de vie premium et son dynamisme économique. Écoles, commerces, loisirs... les habitants profitent d'infrastructures de qualité dans un environnement verdoyant. Avec ses appartements aux prestations raffinées et son efficacité énergétique RE 2020, cette nouvelle résidence neuve répond aux exigences d'une clientèle en quête d'excellence. Un investissement sans faute, idéal pour diversifier votre patrimoine immobilier et bénéficier d'un fort potentiel de valorisation.

Autres logements T4 du programme "Le Clos Gaillardet"

Disponibilité Prix Genre Pièces Surface Étage
Voir
Disponible
389 000€ Appt. T4 80.4m2 0-RDC
DO NOT CLICK