Prix
586 000€
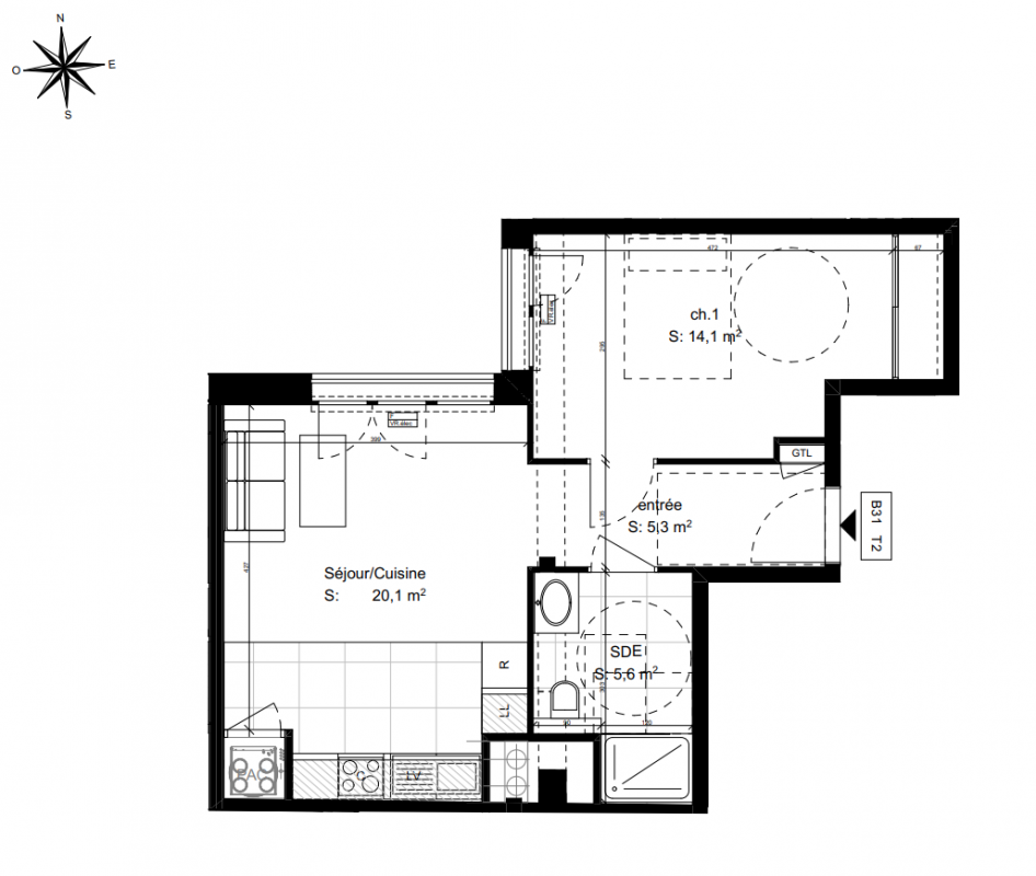
Type
Appt. au 3ème
Pièces
T2
Surface
45.1 m²
Exposition
-
Ville
Paris 18ème (75018)
Livraison
2ème trimestre 2028
Informations
01 81 80 39 10

Présentation du programme "ESPRIT MONTMARTRE"


Parquet
Menuiserie en bois
Carrelage 60x60 cm
Volets roulants motorisés et centralisé
Stores électriques
WC suspendus
Receveur de douche extra plat ou baignoire robinetterie thermostatique
Porte palière anti-effraction équipée d’une serrure 5 points latéraux A2P*
Locaux à vélos

Autres logements T2 du programme "ESPRIT MONTMARTRE"

Disponibilité Prix Genre Pièces Surface Étage
Voir
Disponible
656 000€ Appt. T2 44.3m2 6ème
DO NOT CLICK