Prix
Type
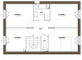
Maison au 0-RDC
Pièces
T5
Surface
95.44 m²
Exposition
Sud-Est
Ville
Ormoy (91540)
Livraison
4ème trimestre 2028
Informations
01 81 80 39 10

Présentation du programme "Villanova"

La résidence se distingue par une architecture élégante et contemporaine qui s'intègre parfaitement au paysage d'Ormoy. Composée de trois bâtiments à taille humaine, elle présente un jeu de volumes équilibrés, offrant une harmonie visuelle idéale. Le cadre paysager est soigneusement conçu, offrant un environnement verdoyant, propice à la détente.Chaque logement, qu'il s'agisse d'un appartement ou d'une maison individuelle, est conçu pour offrir luminosité, confort et bien-être. Les appartements, du studio au 4 pièces, bénéficient pour la plupart d'une double orientation, garantissant une excellente luminosité naturelle. Les espaces sont optimisés pour offrir un cadre de vie agréable et fonctionnel. Les logements disposent de balcons, terrasses ou jardins privatifs, permettant aux résidents de profiter pleinement des extérieurs. Les maisons, de 3 ou 4 chambres, offrent de vastes pièces de vie et un jardin spacieux, parfait pour les moments en famille ou les repas entre amis.

Autres logements T5 du programme "Villanova"

Pas de logements disponibles
DO NOT CLICK