Prix
161 500€
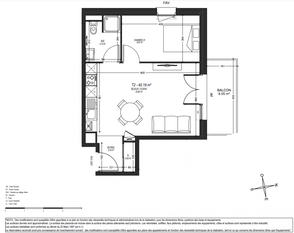
Type
Appt. au 1er
Pièces
T2
Surface
40 m²
Exposition
Nord
Ville
Amiens (80000)
Livraison
3ème trimestre 2028
Informations
01 81 80 39 10

Présentation du programme "Le Château d'Ô"

Située à mi-distance du centre-ville, de l'hôpital Amiens Sud et de l'université de Picardie, la résidence s'installe entre ville et campagne. Un emplacement intimiste, une véritable proximité avec la nature tout en privilégiant les accès vers le centre-ville. À 10 minutes de l'A16 et à moins de 2 kilomètres du centre-ville, découvrez notre futur programme à Amiens/Pont-de-Metz composé de deux bâtiments collectifs. Devenez propriétaire de votre appartement neuf allant du 2 pièces au 4 pièces. Pour toutes informations complémentaires, prenez contact avec nous !

Autres logements T2 du programme "Le Château d'Ô"

Disponibilité Prix Genre Pièces Surface Étage
Voir
Optionné
179 500€ Appt. T2 45m2 0-RDC
Voir
Disponible
169 500€ Appt. T2 41m2 0-RDC
Voir
Disponible
174 499€ Appt. T2 43m2 2ème
DO NOT CLICK