Prix
1 495 000€
Type
Appt. au 1er
Pièces
T5
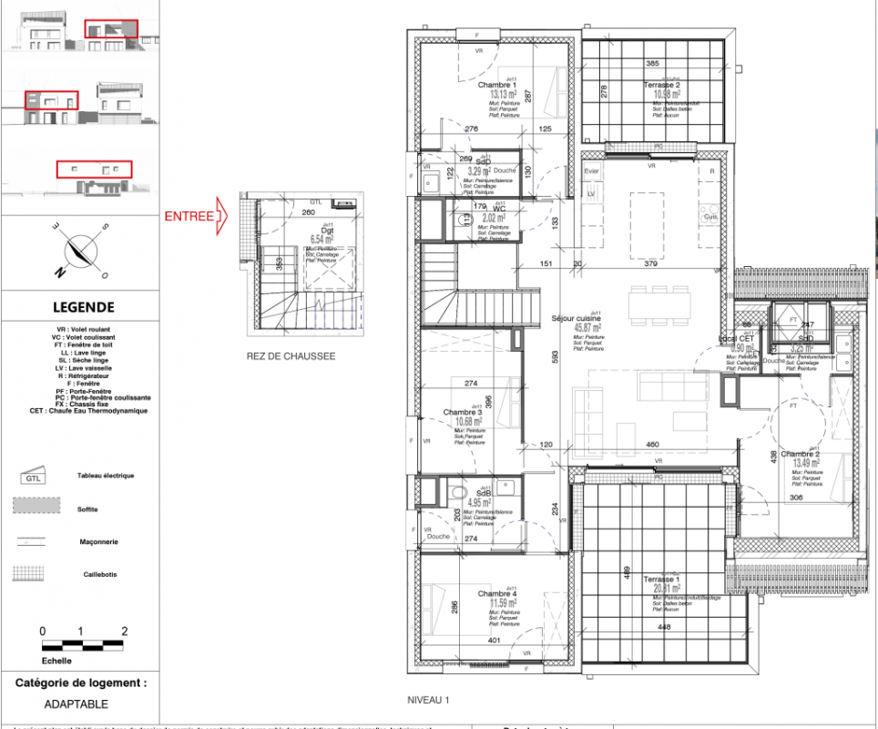
Surface
115.71 m²
Exposition
Nord-Ouest
Ville
Le Touquet-Paris-Plage (62520)
Livraison
4ème trimestre 2027
Informations
01 81 80 39 10

Présentation du programme "AL & JO"

Accéder à la maquette 3D AL&JOLa résidence AL&JO, située à l’angle du Boulevard Thierry Sabine et de l’Avenue de la Condamine, s’inspire des villas emblématiques des années 1920 pour proposer une architecture élégante, intemporelle et résolument contemporaine. Conçue autour de deux villas (Villa AL et Villa JO) elle accueille 8 appartements du T2 au T5 dans un ensemble intimiste et haut de gamme.La Villa AL regroupe 5 appartements répartis sur deux niveaux avec une entrée commune, tandis que la Villa JO propose 3 logements indépendants, chacun accessible par une entrée privative, dont un bénéficiant d’un ascenseur dédié. Chaque appartement s’ouvre sur un espace extérieur : terrasse, balcon ou jardin privatif selon les configurations.nPensée comme une alliance entre héritage architectural et innovation, AL&JO offre un confort moderne, des prestations premium et un emplacement d’exception au cœur d’un quartier résidentiel calme et proche de toutes les commodités de la station.Résidence intimiste et haut de gamme inspirée des villas emblématiques du Touquet.Adresse paisible dans un quartier résidentiel recherché, proche des commerces, restaurants, plages et espaces naturels.Deux villas pour un ensemble exclusif de 8 logements seulement.Espaces extérieurs privatifs : balcons, terrasses ou jardins.Stationnements privatifs : garages motorisés ou places extérieures selon les logements.Prestations intérieures premium : matériaux nobles, cuisine entièrement équipée, larges baies vitrées, volets roulants électriques.AppartementsCuisine équipée comprenant meubles hauts/bas, électroménager (plaque, four, hotte, lave‑vaisselle ; cave à vin pour T4/T5).Parquet ou carrelage dans les pièces de vie ; carrelage dans les pièces humides.Volets roulants électriques dans les chambres et pièces de vie.Larges ouvertures pour une luminosité optimale.Salle de bain ou salle d’eau équipée : meuble vasque, miroir éclairé, receveur extra‑plat, robinetterie haut de gamme.Production d’eau chaude par ballon thermodynamique (Villa AL) ou pompe à chaleur (Villa JO).Chauffage électrique (Villa AL) ou par pompe à chaleur (Villa JO).Parties communes & extérieursParties communes décorées par un architecte d’intérieur.Locaux vélos individuels et cavettes.Aménagement paysager soigné des abords.Portail parking motorisé et accès piéton dédié.À proximitéCommerces, marché, restaurants et animations du centre du TouquetPlage, forêt, dunes et promenades accessibles aisément selon la localisation dans l

Autres logements T5 du programme "AL & JO"

Pas de logements disponibles
DO NOT CLICK