Prix
473 276€
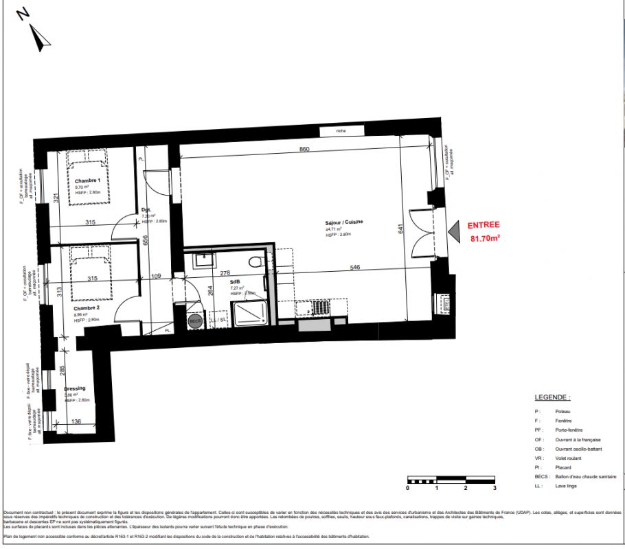
Type
Appt. au 0-RDC
Pièces
T3
Surface
80.62 m²
Exposition
Nord
Ville
Metz (57000)
Livraison
4ème trimestre 2024
Informations
01 81 80 39 10

Présentation du programme "Metz Rue Serpenoise"

Situé au cœur du plan de sauvegarde et de mise en valeur, la rue Serpenoise est entièrement reconfigurée et repensée, pour accueillir, dans un même lieu, des commerces, des logements et des espaces verts permettant d’offrir un programme diversifié qui garantit la mixité des usages des futurs habitants.Au cœur de la mégalopole européenne, au centre de la région Grand Est, Metz est une ville dynamique, véritable pôle culturel et industriel à la démographie croissante. Avec plus de 120 000 habitants, elle représente une destination privilégiée pour les jeunes actifs. La croissance économique se traduit par la présence de nombreuses entreprises sur le territoire.Par ailleurs, ce pôle culturel et industriel bénéficie des synergies avec les pays européens frontaliers et d’un réseau de transport fortement développé.Partie intégrante du patrimoine messin, le bâtiment iconique et emblématique abritait jusqu’alors l’enseigne Le Printemps. Son emplacement est exceptionnel et sa façade remarquable en grès des Vosges et pierre de Jaumont est préservée et restaurée. Le projet s’adapte aux usages et attentes des futures habitants tout en revalorisant le patrimoine ancien et les savoir-faire existants pour offrir des appartements de demain, plus durables et responsables. La création de jardins et la mise en place de logements qualitatifs répond aux besoins des populations locales.À 10 min à pied de la gare, la rue Serpenoise est l’artère principale du centre-ville. C’est là que bat son cœur historique. Ce quartier vivant, au patrimoine architectural unique, rythmé par ses nombreux commerces de proximité, est relié à l’ensemble de la ville, grâce au réseau de transports en commun dont il est le nœud central.Crédits photos : Jérémie BouillonVidéo : OnirimArchitecte : GHA Architectes

Autres logements T3 du programme "Metz Rue Serpenoise"

Disponibilité Prix Genre Pièces Surface Étage
Voir
Disponible
453 531€ Appt. T3 56.8m2 3ème
DO NOT CLICK