Prix
186 115€  (TVA 20%)
170 605€  (TVA 10%)
Type
Appt. au 3ème
Pièces
T2
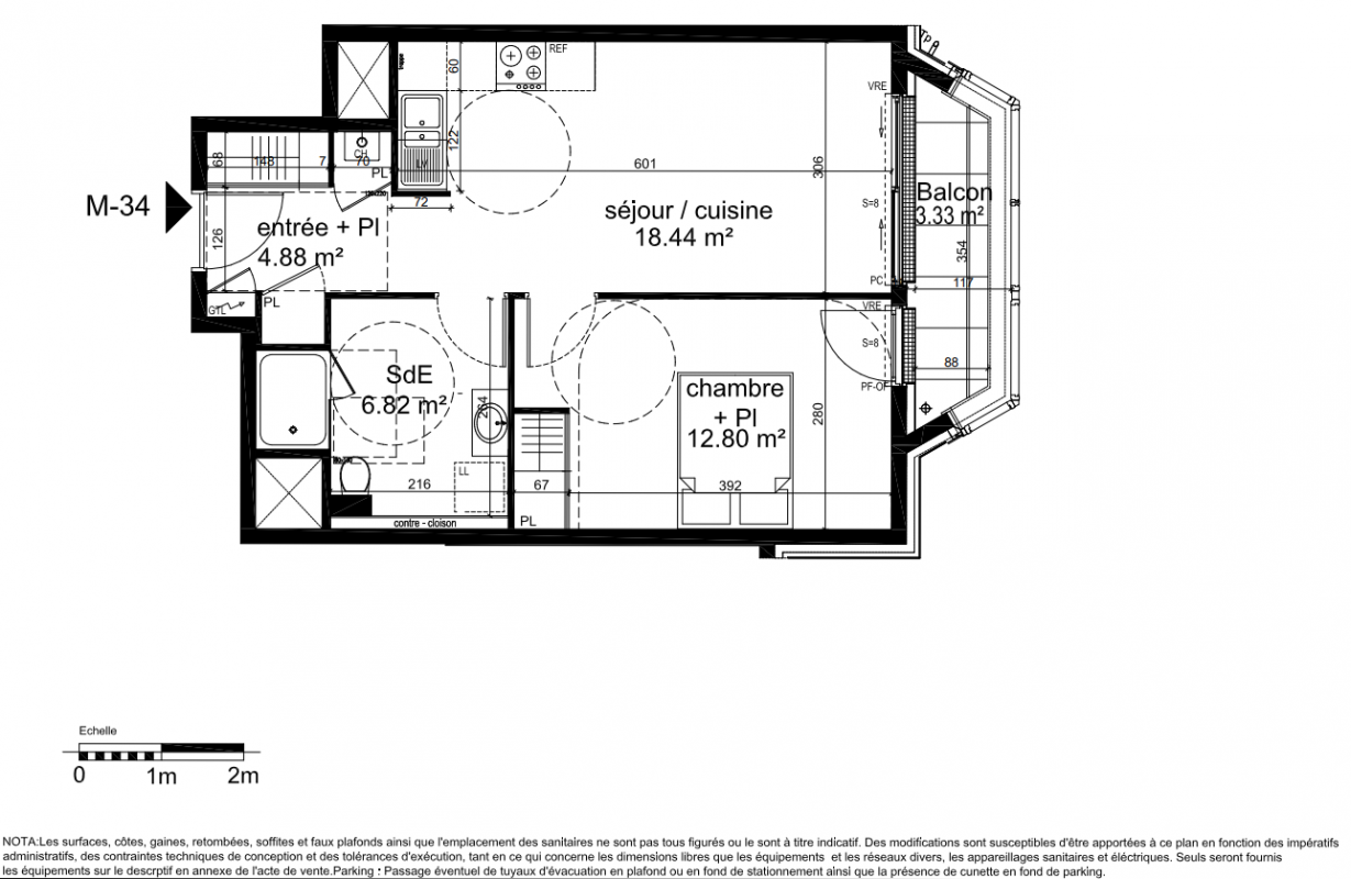
Surface
42.94 m²
Exposition
Nord
Ville
Dinard (35800)
Livraison
1er trimestre 2028
Informations
01 81 80 39 10

Présentation du programme "ART DÉCO"

Nouvelle résidence à Dinard, station balnéaire de caractère entre terre et mer, reconnue pour son patrimoine architectural classé et protégé. La résidence "Art Déco" est une adresse unique dans le cœur battant de Dinard, à 10 min à pied de la plage du Prieuré. Imaginée par un grand nom de l’architecture, Ricardo Bofill, la résidence oscille entre hommage à la Belle Époque et style contemporain. Démarrage des travaux imminent (avril 2026). Déductibilité des intérêts d'emprunt.

Autres logements T2 du programme "ART DÉCO"

Disponibilité Prix Genre Pièces Surface Étage
Voir
Disponible
172 355€ Appt. T2 39.45m2 1er
Voir
Disponible
213 057€ Appt. T2 49.83m2 1er
Voir
Disponible
185 239€ Appt. T2 42.94m2 1er
Voir
Optionné
173 159€ Appt. T2 39.45m2 2ème
Voir
Disponible
214 073€ Appt. T2 49.83m2 2ème
Voir
Disponible
186 115€ Appt. T2 42.94m2 2ème
DO NOT CLICK