Prix
240 000€
Type
Appt. au 3ème
Pièces
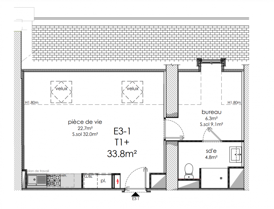
Studio
Surface
33.8 m²
Exposition
Nord
Ville
Dinan (22100)
Livraison
3ème trimestre 2027
Informations
01 81 80 39 10

Présentation du programme "La Caserne Beaumanoir"

Investissez à Dinan, ville historique au patrimoine uniqueDinan, labellisée "Ville & Pays d’Art & d’Histoire", compte plus de 70 monuments historiques (remparts, Tour de l’Horloge, Basilique Saint Sauveur).Une vie culturelle riche et vivante : festivals, expositions, sensibilisation des habitants et visiteurs autour de l’histoire et de l’art de vivre breton.Proximité de hauts lieux culturels et historiques : Saint-Malo (20 min), Dinard station balnéaire (20 min), Mont-Saint-Michel, site UNESCO et patrimoine mondial (45 min). Située sur les rives de la Rance, Dinan offre une qualité de vie exceptionnelle. Dinan, quatrième ville la plus attractive de BretagnePlus de 700 000 visiteurs par an, séduits par son centre historique, ses remparts et son cadre unique.3 200 entreprises et 650 commerces témoignent d’un dynamisme économique fort.Une économie diversifiée et solide, portée à la fois par le tourisme, l’administration et le commerce. Commodités et transports Commerces de proximité, école primaire, Musée du Rail, Place René Pleven, centre historique.À quelques pas de la gare TER de Dinan et des arrêts de bus : mobilités du quotidien simplifiées.Connexions rapides : Paris en 2h40 (TGV et TER), Rennes en 40 min, Saint Malo & Dinard en 20 min. Focus Prestations/RésidenceRéhabilitation haut de gamme d’un édifice militaire du XIXe siècle : façades en pierre de taille et granit, grandes ouvertures (vues dégagées), ascenseurs, isolation optimisée.Intérieurs soignés : parquets stratifiés, menuiseries aluminium ; cuisine aménagée (meubles hauts/bas, plan de travail qualitatif, plaque vitrocéramique, hotte) ; salle de bains premium (faïences italiennes).5 places de parking disponibles. Le + du programme : Trois fiscalités possibles : Denormandie, Déficit Foncier et Denormandie optimisé au Déficit Foncier 

Autres logements Studio du programme "La Caserne Beaumanoir"

Pas de logements disponibles
DO NOT CLICK